• Info >

    Midland, Ontario

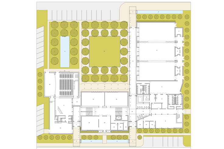
    Midland’s historic Regent School, a brick and sandstone Edwardian block is the core upon which this multi-use arts complex was designed. Its eight renovated classrooms were designed to accommodate the Quest Art School + Gallery. The school’s later additions were both repurposed into spaces to house the Huronia Players, 120-seat theatre and new location for an art college.

     

Institutional